Descubre Villa Stone Plus
Imagina vivir en una villa de nueva construcción diseñada con atención a cada detalle para ofrecer confort, estilo y funcionalidad. Con Villa Stone Plus, puedes elegir tu parcela ideal en Aspe, Pinoso, La Romana, Hondón de las Nieves y Elche. Las parcelas no están incluidas en el precio; consulta disponibilidad y precios.
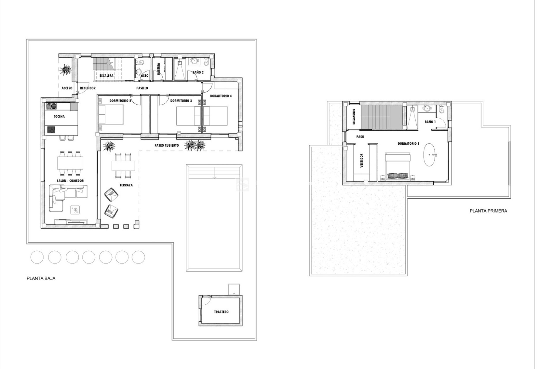
Características principales de Villa Stone Plus
Piscina privada: 8 x 4 m en gresite con corona blanca, focos LED, trastero de 2 x 3 m con ducha exterior y puerta metálica, perímetro de hormigón impreso. Posibilidad de añadir césped artificial para disfrutar al máximo del jardín.
Diseño interior y exterior de alta calidad: Carpintería de aluminio negro con persianas motorizadas, repisas de Caliza Capri y acristalamiento climalit.
Espacios inteligentes: Armarios empotrados y pavimentos personalizables en gres porcelánico de alta gama, con pavimento antideslizante en terrazas exteriores.
Acabados exteriores duraderos: Acera perimetral de 1 metro en hormigón impreso, garantizando durabilidad y estilo.
Baños modernos: Platos de ducha con mampara, grifería monomando cromada, muebles con lavabo empotrado y espejo LED, y sanitarios de porcelana vitrificada.
Cocina de ensueño: Muebles altos y bajos hasta el techo, bancada de Silestone, isla central, preinstalación de electrodomésticos y revestimiento cerámico de primera calidad.
Climatización y confort: Preinstalación para bomba de frío/calor por conductos, sistema de aerotermia para agua caliente sanitaria y salida de humos para chimenea.
Energía renovable: Preinstalación para placas fotovoltaicas, promoviendo eficiencia energética y sostenibilidad.
Seguridad y privacidad: Parcela vallada con puerta automática para vehículos.
Villa Stone Plus combina estilo moderno, confort premium y tecnología sostenible en un entorno privilegiado. No es solo una casa: es tu refugio personal, lista para que comiences a vivir la vida que siempre soñaste.