Ontdek Villa Stone
Stel je voor dat je woont in een nieuw gebouwde villa, zorgvuldig ontworpen voor comfort, stijl en functionaliteit. Met Villa Stone kies je jouw ideale perceel in Aspe, Pinoso, La Romana, Hondón de las Nieves en Elche. Perceelprijzen zijn niet inbegrepen; raadpleeg beschikbaarheid en prijzen.
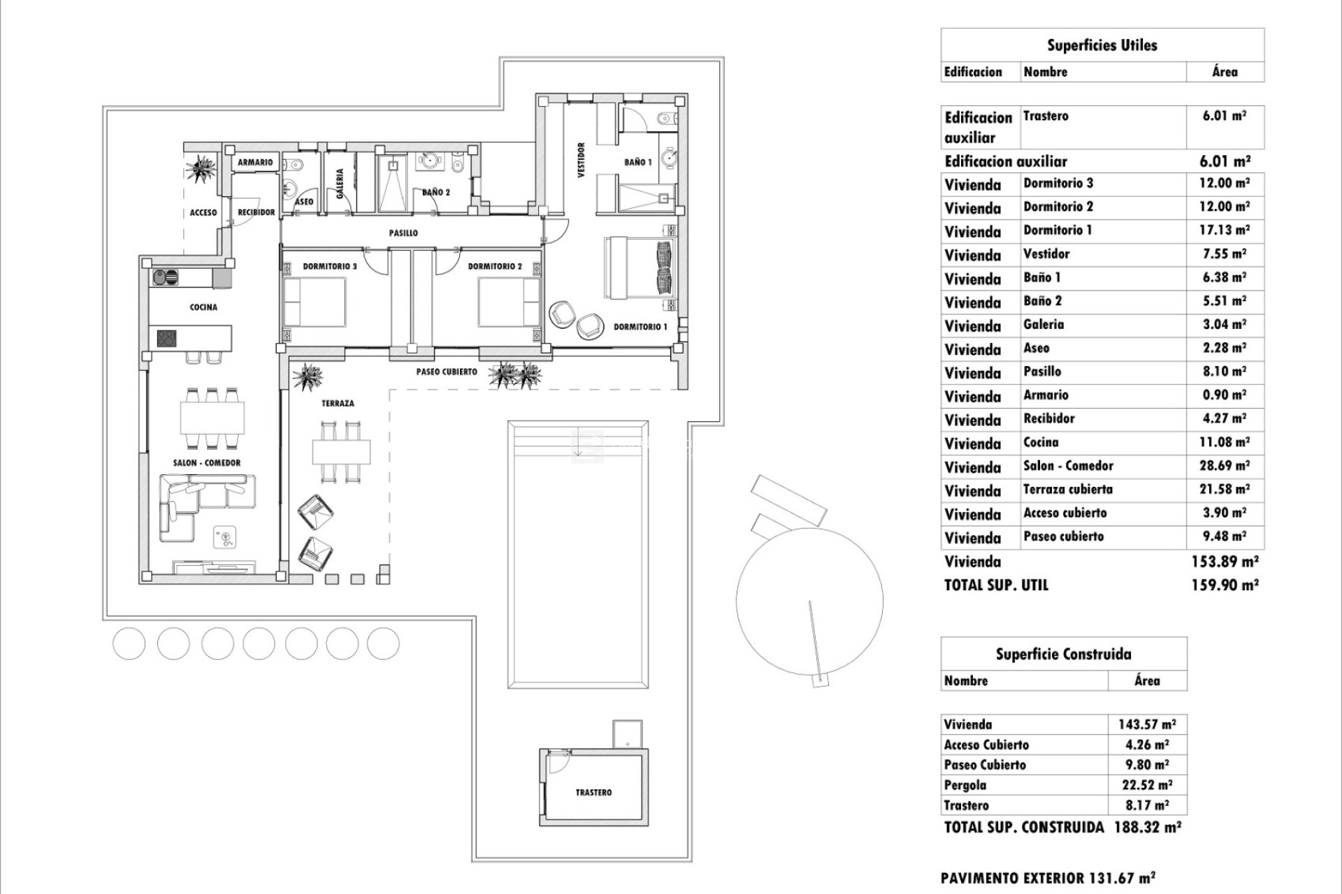
Belangrijkste kenmerken van Villa Stone
Privézwembad: 8 x 4 m met witte rand, LED-verlichting, berging van 2 x 3 m met buitendouche en metalen deur, omheining in geprint beton. Optie voor kunstgras om optimaal van de tuin te genieten.
Hoogwaardige binnen- en buitenafwerking: Zwarte aluminium kozijnen met gemotoriseerde rolluiken, Caliza Capri-planken, climalit-glas.
Slimme ruimtes: Ingebouwde kasten en aanpasbare hoogwaardige porseleinen tegelvloeren, antislip terrastegels.
Duurzame buitenafwerking: 1 meter brede rand rondom in geprint beton, voor duurzaamheid en stijl.
Moderne badkamers: Douchebakken met schermen, chroom enkelhendelkranen, meubels met inbouwwasbak en LED-spiegel, sanitaire voorzieningen van geglazuurd porselein.
Droomkeuken: Kast tot aan het plafond, Silestone werkblad, centrale eiland, voorbereidingen voor apparaten, hoogwaardige keramische wandbekleding.
Klimaatregeling en comfort: Voorbereiding voor luchtkanalen voor warm/koud airconditioning, aerothermisch systeem voor warm water, en rookkanaal voor open haard.
Duurzame energie: Voorbereiding voor zonnepanelen, bevordert energie-efficiëntie en duurzaamheid.
Veiligheid en privacy: Omheind perceel met automatische poort voor voertuigen.
Villa Stone combineert moderne stijl, premium comfort en duurzame technologie in een unieke locatie. Het is meer dan een huis: het is jouw persoonlijke toevluchtsoord, klaar om te beginnen met de levensstijl waar je altijd van hebt gedroomd.