En el corazón del valle y rodeadas de viñedos, almendros y suaves colinas, estas villas de nueva construcción en Aspe ofrecen un estilo de vida tranquilo y luminoso.
Con parcelas disponibles también en pueblos con encanto como Pinoso, La Romana o Hondón de las Nieves.
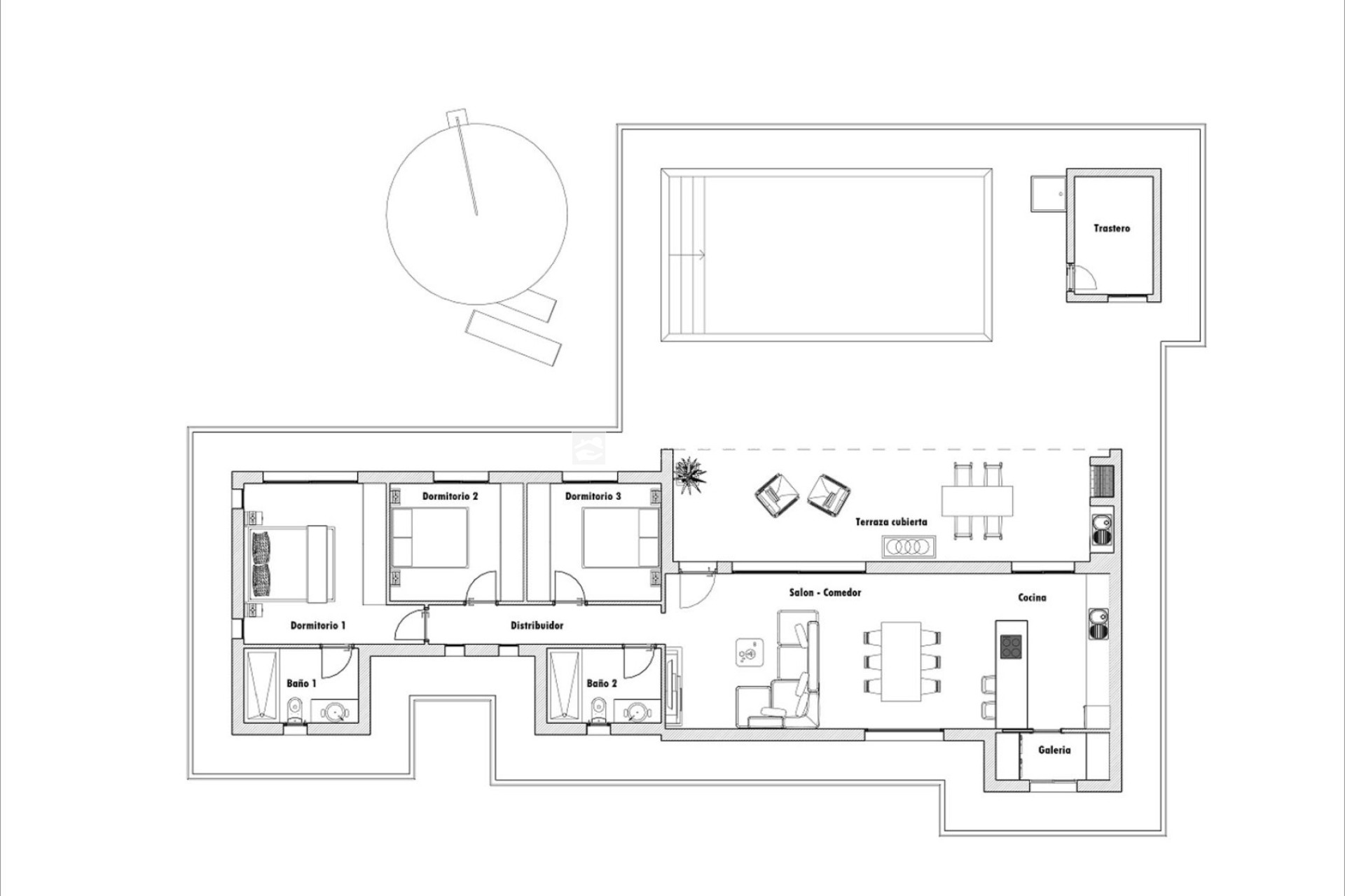
Podrás elegir entre varios modelos personalizables, con 2, 3 o 4 dormitorios, construidos sobre losa o con estructura (ideal para viviendas de dos plantas). Cada proyecto se adapta a tus necesidades y a la parcela rústica elegida, siempre con una superficie mínima de 10.000 m², para disfrutar de la amplitud y la privacidad del campo.
El precio final se determinará según el modelo y el terreno seleccionados, garantizando siempre la calidad en materiales, acabados y diseño.
Características incluidas:
Vallado de 2.500 m² con puerta de acceso automática corredera y motor incluido.
Piscina privada de 8x4 m con dos focos LED.
Trastero para la bomba de piscina y ducha exterior.
Carpintería de aluminio con persianas motorizadas y acristalamiento Climalit.
Armarios empotrados en dormitorios.
Baños equipados con sanitarios, plato de ducha con mampara, mueble con lavabo empotrado y espejo LED.
Cocina completamente amueblada con bancada de Silestone o similar.
Videoportero con imagen.
Preinstalación de aire acondicionado frío/calor por conductos.
Sistema de agua caliente mediante aerotermia.
Preinstalación para futuras placas solares.
Vive el auténtico estilo de vida mediterráneo en Aspe, a solo 15 minutos de Elche, 25 minutos de Alicante, con el aeropuerto cercano y las playas a un corto trayecto en coche. No dejes pasar la oportunidad de diseñar tu hogar rodeado de naturaleza, tranquilidad y sol todo el año. Contacta con Alicante Maravillas y empieza a construir la vida que siempre has soñado.