Au cœur de la vallée et entourées de vignobles, d’amandiers et de douces collines, ces villas neuves à Aspe offrent un style de vie paisible et lumineux.
Des terrains sont également disponibles dans des villages charmants tels que Pinoso, La Romana ou Hondón de las Nieves.
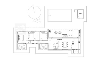
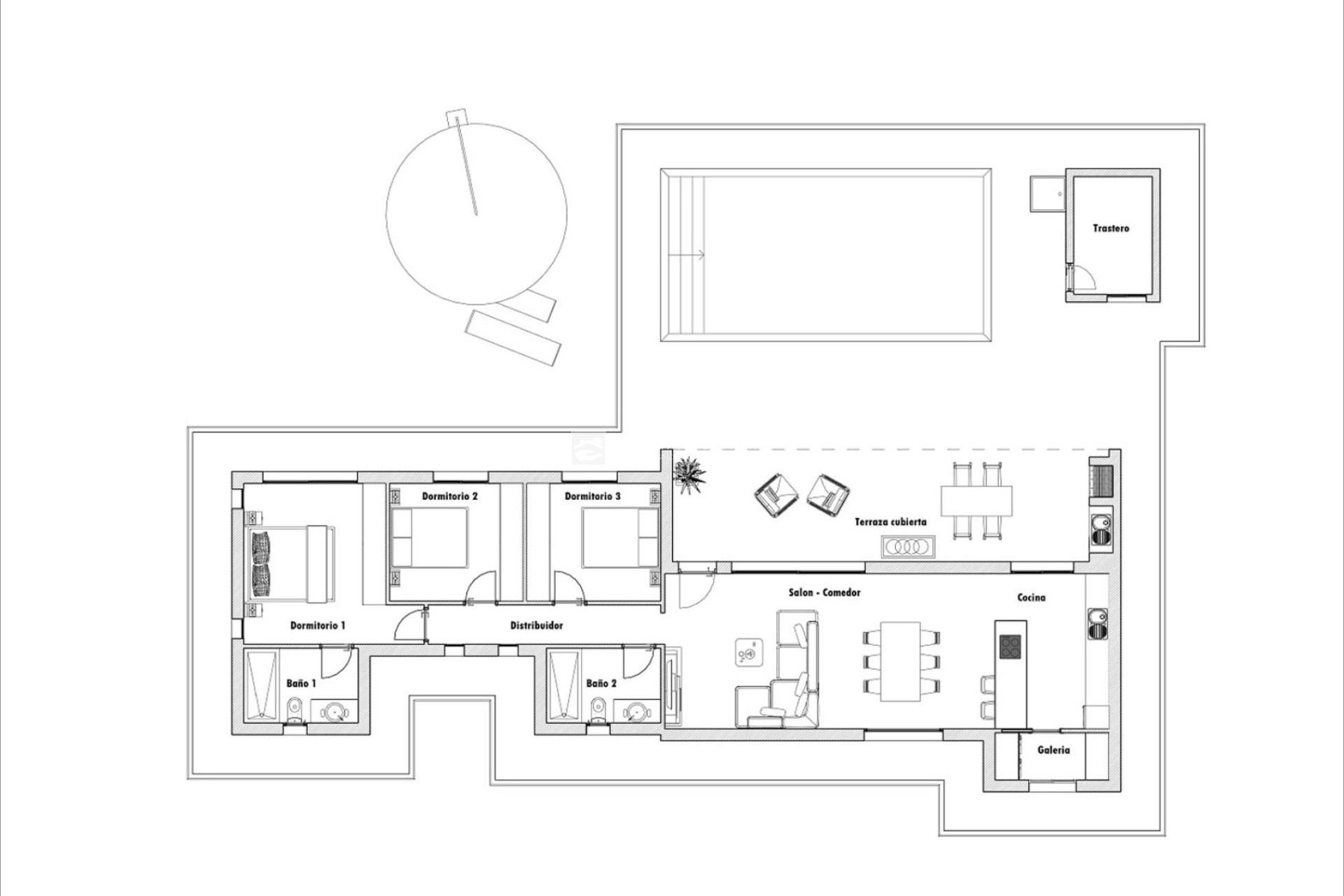
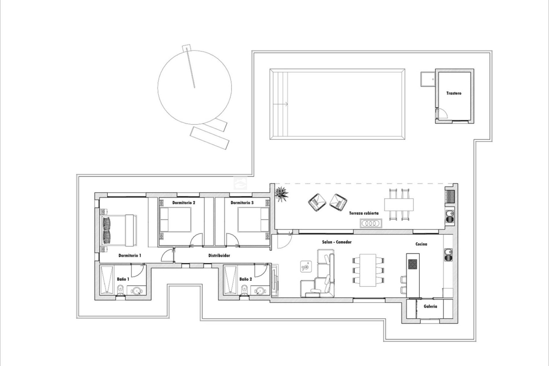
Vous pouvez choisir parmi plusieurs modèles personnalisables, avec 2, 3 ou 4 chambres, construits sur dalle ou avec structure (idéal pour des maisons à deux étages). Chaque projet s’adapte à vos besoins et au terrain rustique choisi, toujours avec une surface minimale de 10 000 m², pour profiter de l’espace et de l’intimité de la campagne.
Le prix final sera déterminé selon le modèle et le terrain sélectionnés, en garantissant toujours la qualité des matériaux, des finitions et du design.
Caractéristiques incluses :
Terrain clôturé de 2 500 m² avec portail d’entrée coulissant automatique et moteur inclus.
Piscine privée 8x4 m avec deux éclairages LED.
Local technique pour la pompe de la piscine et douche extérieure.
Menuiserie en aluminium avec volets motorisés et vitrage Climalit.
Placards intégrés dans les chambres.
Salles de bains équipées de sanitaires, receveur de douche avec paroi, meuble avec lavabo intégré et miroir LED.
Cuisine meublée avec plan de travail en Silestone ou similaire.
Vidéophone avec image.
Préinstallation pour climatisation gainable (froid/chaleur).
Système d’eau chaude via aérothermie.
Préinstallation pour panneaux solaires futurs.
Vivez le véritable style de vie méditerranéen à Aspe, à seulement 15 minutes d’Elche, 25 minutes d’Alicante, avec l’aéroport à proximité et les plages à quelques minutes en voiture. Ne manquez pas l’occasion de concevoir votre maison entourée de nature, de tranquillité et de soleil toute l’année. Contactez Alicante Maravillas et commencez à construire la vie dont vous avez toujours rêvé.