Discover Villa Stone
Imagine living in a newly built villa designed with attention to every detail, offering comfort, style, and functionality. With Villa Stone, you can choose your ideal plot in Aspe, Pinoso, La Romana, Hondón de las Nieves, and Elche. Plots are not included in the price; check availability and prices.
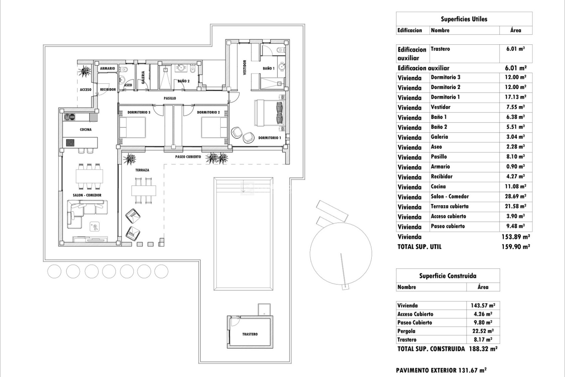
Main Features of Villa Stone
Private swimming pool: 8 x 4 m with white coping, LED lights, 2 x 3 m storage room with outdoor shower and metal door, perimeter in printed concrete. Option to add artificial grass for a perfect garden.
High-quality interior and exterior design: Black aluminum carpentry with motorized blinds, Caliza Capri shelves, and climalit glazing.
Smart spaces: Built-in wardrobes and customizable porcelain tile flooring, non-slip outdoor terrace flooring.
Durable exterior finishes: 1-meter perimeter sidewalk in printed concrete, ensuring durability and style.
Modern bathrooms: Shower trays with screens, chrome single-lever faucets, furniture with integrated sink and LED mirror, and vitreous porcelain sanitary ware.
Dream kitchen: Full-height cabinets, Silestone countertops, central island, appliance pre-installation, and high-quality ceramic backsplash.
Heating and comfort: Pre-installation for ducted air conditioning, aerothermal system for hot water, and chimney outlet.
Renewable energy: Pre-installation for photovoltaic panels, promoting energy efficiency and sustainability.
Security and privacy: Fenced plot with automatic vehicle gate.
Villa Stone combines modern style, premium comfort, and sustainable technology in a privileged location. More than a house, it’s your personal retreat, ready for you to start living the life you’ve always dreamed of.